1. Accueil
  2. Programmes neufs
  3. Appartement T4 duplex dans une maison de ville rénové avec un architecte d'intérieur à Lyon 9ème dans le Rhône
Retour
Programmes neufs

Appartement T4 duplex dans une maison de ville rénové avec un architecte d'intérieur à Lyon 9ème dans le Rhône

Vendu
chambre avec salle de bain
Voir plus

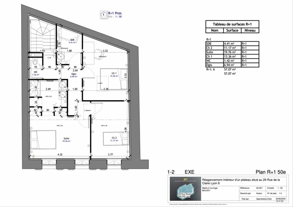
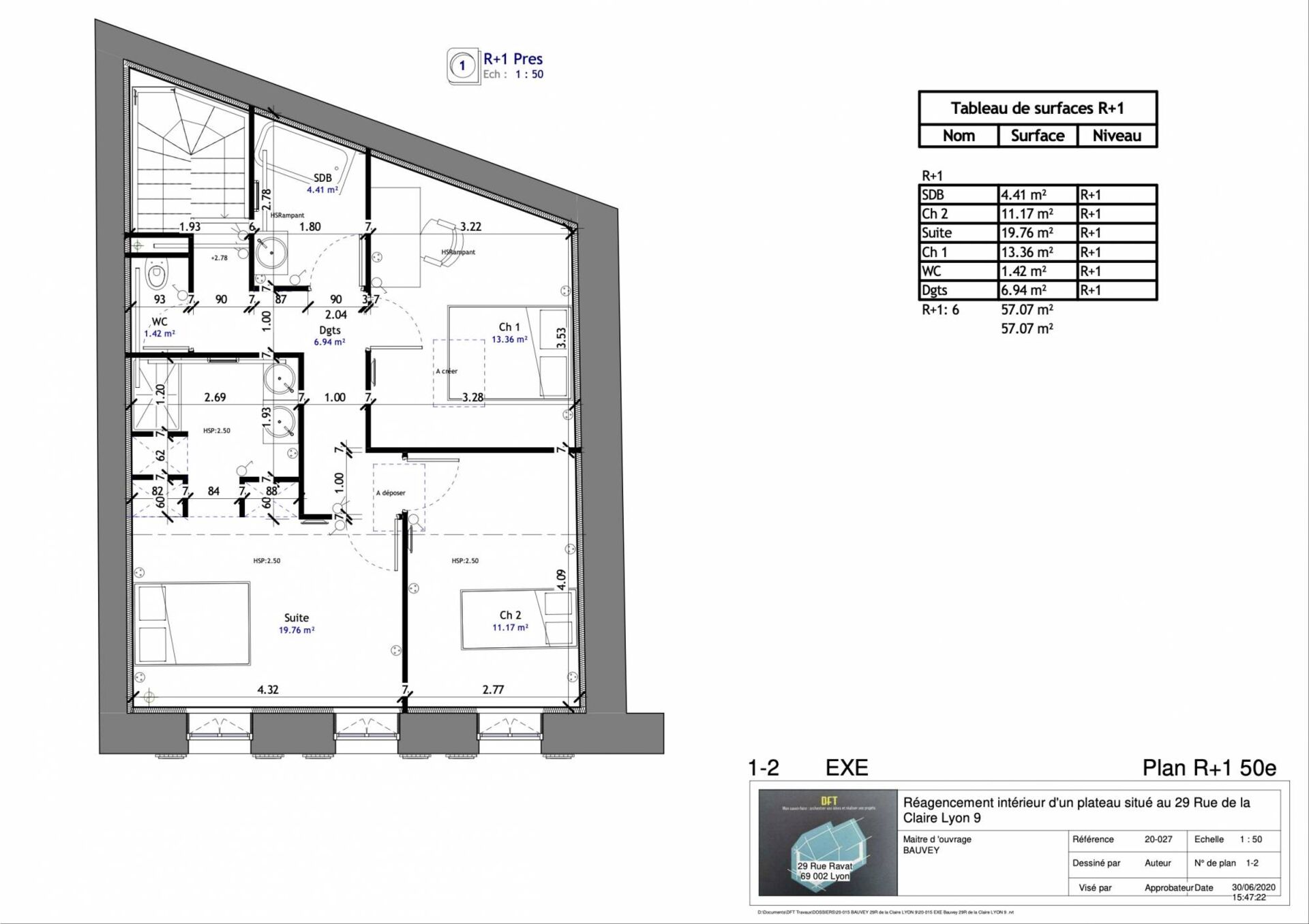
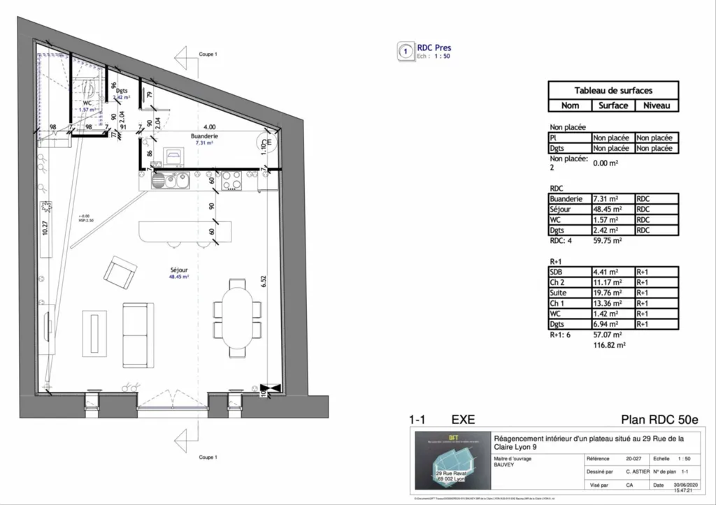
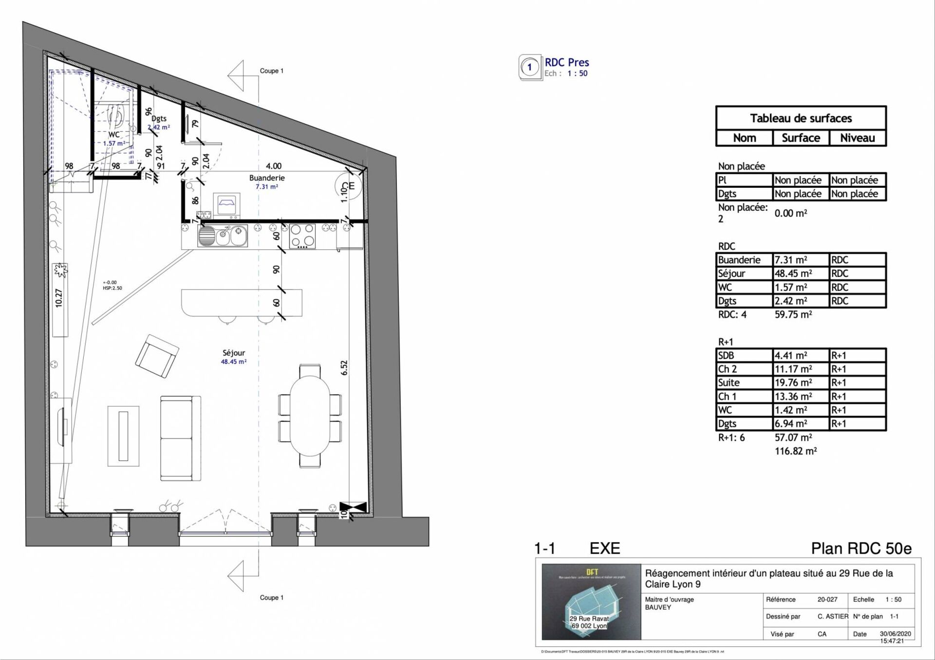
A Lyon 9ème à proximité immédiate du métro ligne D et de tous les commerces de proximité, nous vous proposons à la vente, un appartement T4 duplex au sein d'une maison de ville composée de trois chambres et 2 salles de bains, WC indépendants, grande pièce à vivre avec une cuisine entièrement équipée, buanderie.

L'appartement a été entièrement rénové dans des prestations de grandes qualités, espace de vie optimisé par un architecte d'intérieur. 

Ce bien bénéficie d'une climatisation réversible, une cuisine et salles de bains équipées.  Parking privatif. Bien rare à la vente.
Partager :
Nous écrire
Les champs indiqués par un astérisque (*) sont obligatoires