1. Accueil
  2. Biens vendus
  3. Local commercial idéal profession libérale situé dans le quartier Moulin à vent Limite Lyon 8ème/Vénissieux
Retour
Biens vendus

Local commercial idéal profession libérale situé dans le quartier Moulin à vent Limite Lyon 8ème/Vénissieux

Vendu
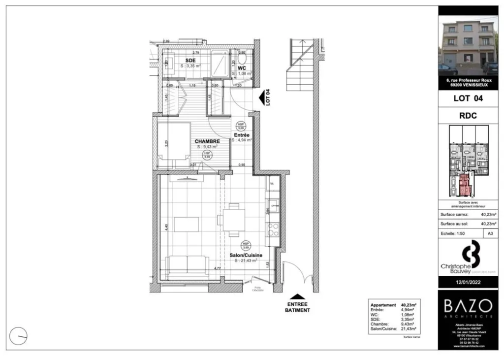
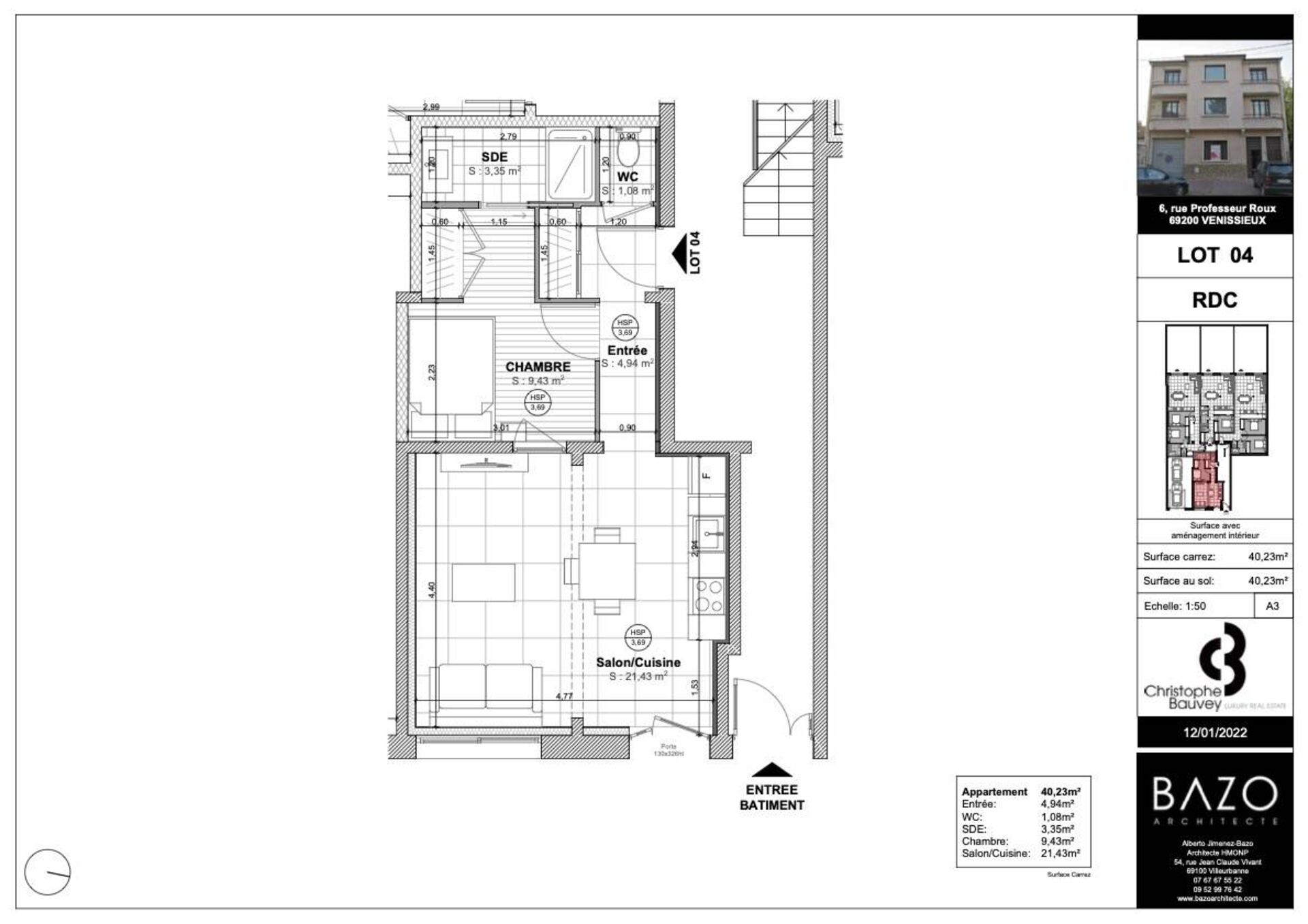
Immeuble 6 rue du professeur Roux à Vénissieux
Voir plus

Situé dans le quartier Moulin à vent, limite Lyon 8ème, au sein d’un quartier vivant et dans une rue calme, nous vous proposons à la vente un local commercial d'une superficie de 40,23m2.
Idéal pour une profession libérale, ce local commercial est en RDC sur rue. Situé au sein d'une petite copropriété entièrement réhabilitée, "résidence le 6". Livraison 1er trimestre 2023. Emplacement de 1er ordre, à proximité immédiate des transports en commun T6 arrêt Petite GUILLE, BUS 34 GRANGE BLANCHE, commerces.

Partager :
Nous écrire
Les champs indiqués par un astérisque (*) sont obligatoires