1. Accueil
  2. Achat
  3. Appartements
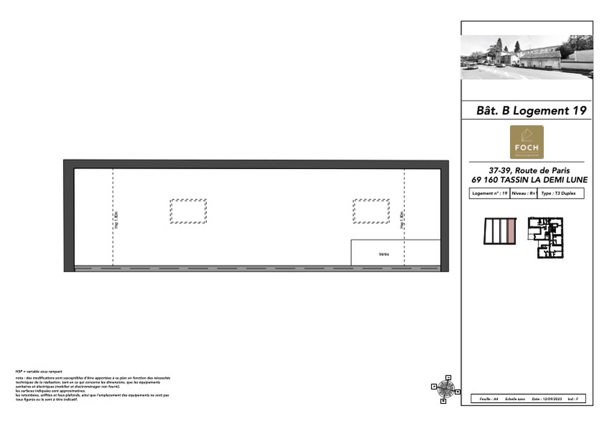
  4. T3 duplex en plateau brut à aménager – 53,01 m² – rez-de-jardin avec extérieur – Villa Astra, Tassin-la-Demi-Lune
Retour
Appartements
Tassin la demi-lune - T3 duplex en plateau brut à aménager

T3 duplex en plateau brut à aménager – 53,01 m² – rez-de-jardin avec extérieur – Villa Astra, Tassin-la-Demi-Lune

Tassin-la-Demi-Lune la demie proche de lyon
Voir plus
À Tassin-la-Demi-Lune, au sein de la résidence réhabilitée Villa Astra, découvrez un appartement T3 duplex de 53,01 m² à vendre en plateau brut, situé en rez-de-jardin avec extérieur privatif. Idéal pour un premier achat en résidence principal (primo-accédant) ou investissement locatif, ce duplex offre un fort potentiel d’optimisation.
Sa configuration permet d’imaginer une pièce de vie lumineuse avec cuisine ouverte au rez-de-jardin, bénéficiant d’un accès direct à l’extérieur, et à l’étage, deux chambres, une salle d’eau et des rangements. Le cadre de vie mêle confort, calme et praticité, avec une vraie vie dedans-dehors grâce au jardin privatif.
La résidence Villa Astra bénéficie d’une réhabilitation soignée : accès sécurisé par digicode/VIGIK, halls et circulations rénovés avec éclairage par détection, espaces verts communs, fibre/TV pré-équipées, boîtes aux lettres aux normes et local poubelles dédié. 
Le lot est vendu non aménagé : cloisons, cuisine et salle d’eau sont à créer par l’acquéreur. Sur simple demande, un devis de travaux peut vous être fourni pour vous aider à mieux vous projeter. Emplacement recherché, proche commerces et transports de l’Ouest lyonnais.
Partager :
Nous écrire
Les champs indiqués par un astérisque (*) sont obligatoires