1. Accueil
  2. Programmes neufs
  3. Vente de 2 appartements en plateau à aménager dans un immeuble art déco avec ascenseur dans la rue Pensier à Lyon 8
Retour
Programmes neufs

Vente de 2 appartements en plateau à aménager dans un immeuble art déco avec ascenseur dans la rue Pensier à Lyon 8

Vendu
Vente de 2 appartements en plateau à aménager dans un immeuble art déco avec ascenseur dans la rue Pensier à Lyon 8
Voir plus

Dans un immeuble art déco, au 3ème étage avec ascenseur, nous vous proposons à la vente 2 appartements en plateau à aménager.

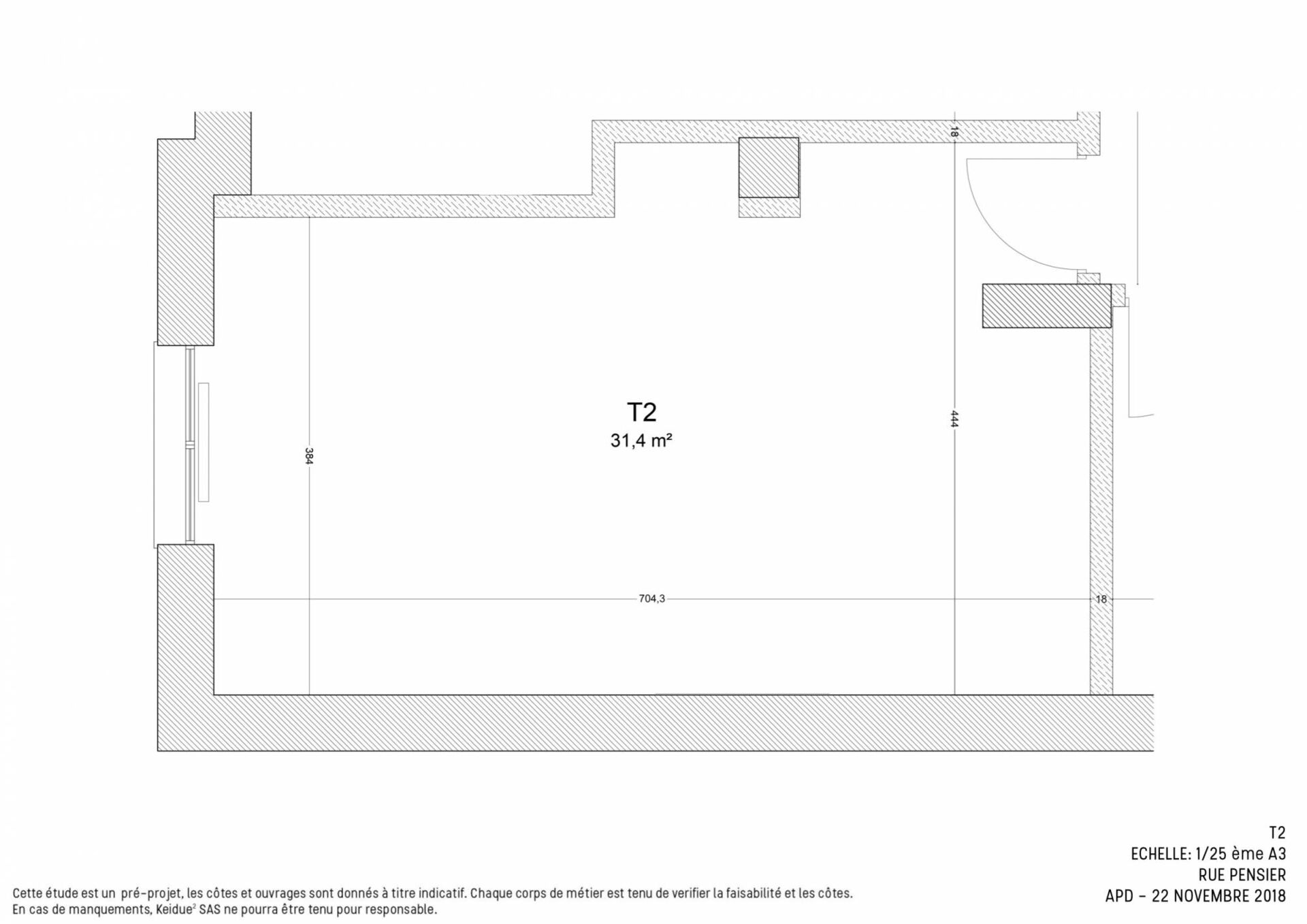
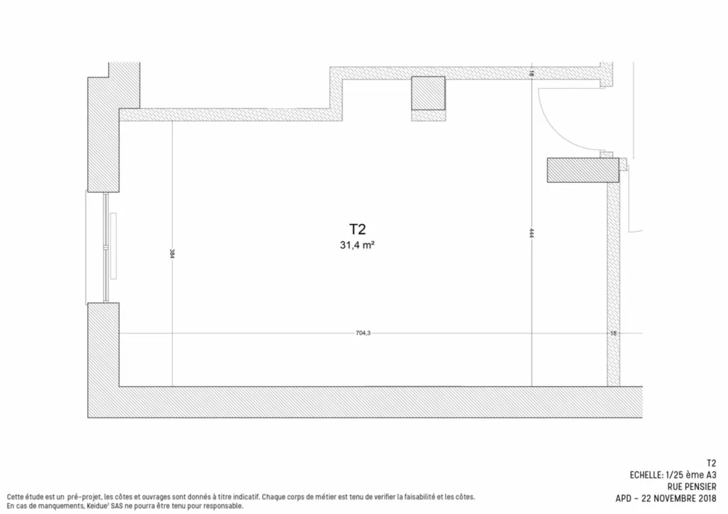
D'une superficie de 31,4m2 parfaitement confirguré, vous aménagez un appartement T2 avec une belle pièce de vie.

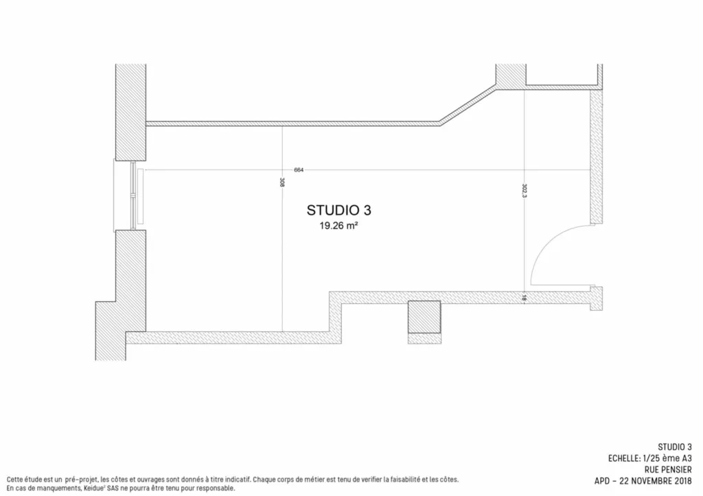
D'une superficie de 19m2, vous aménagez un appartemnt T1 avec un coin cuisine.

Possibilité de fournir un marché de travaux.

7 RUE HENRI PENSIER 69008 LYON
Partager :
Nous écrire
Les champs indiqués par un astérisque (*) sont obligatoires