1. Accueil
  2. Achat
  3. Chalets & appartements à la montagne
  4. Appartement 2C Vaujany Centre village exposition sud/est
Retour
Chalets & appartements à la montagne

Appartement 2C Vaujany Centre village exposition sud/est

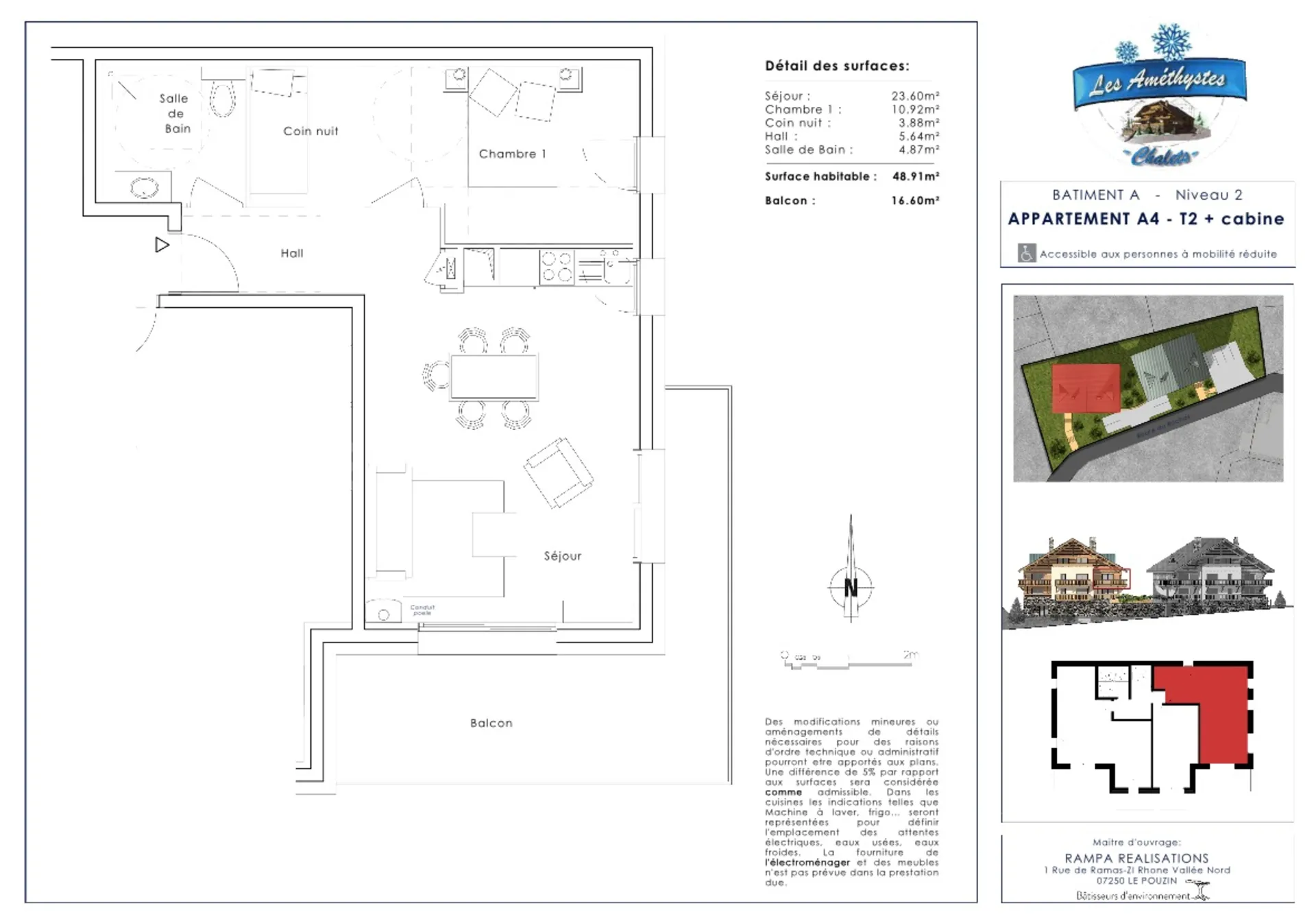
appartement A4 chalet A
Voir plus

Vaujany, station familiale, donnant accès au domaine skiable Espace Diamant.

 

La résidence secondaire  "Les Améthystes" est composé de 2 chalets intimistes réparti en 8 logements chacuns.

Son architecture typiquement savoyarde et traditionnelle s'intègre d'une manière très naturelle dans le paysage.

Au sein de cette résidence, nous vous proposons à la vente un magnifique appartement de T2 cabine, beneficiant d'une vue sud est exceptionnelle et complétement dégagée sur la montagne. Une terrasse de 16,60m2 pour profiter du paysage.

 

Cet appartement est entièrement équipé, un parking et un casier privatif font également partie du lot.

 

 

 

 

Partager :
Nous écrire
Les champs indiqués par un astérisque (*) sont obligatoires