Chalets & appartements à la montagne

Appartement 3 proche de Megève

Vendu

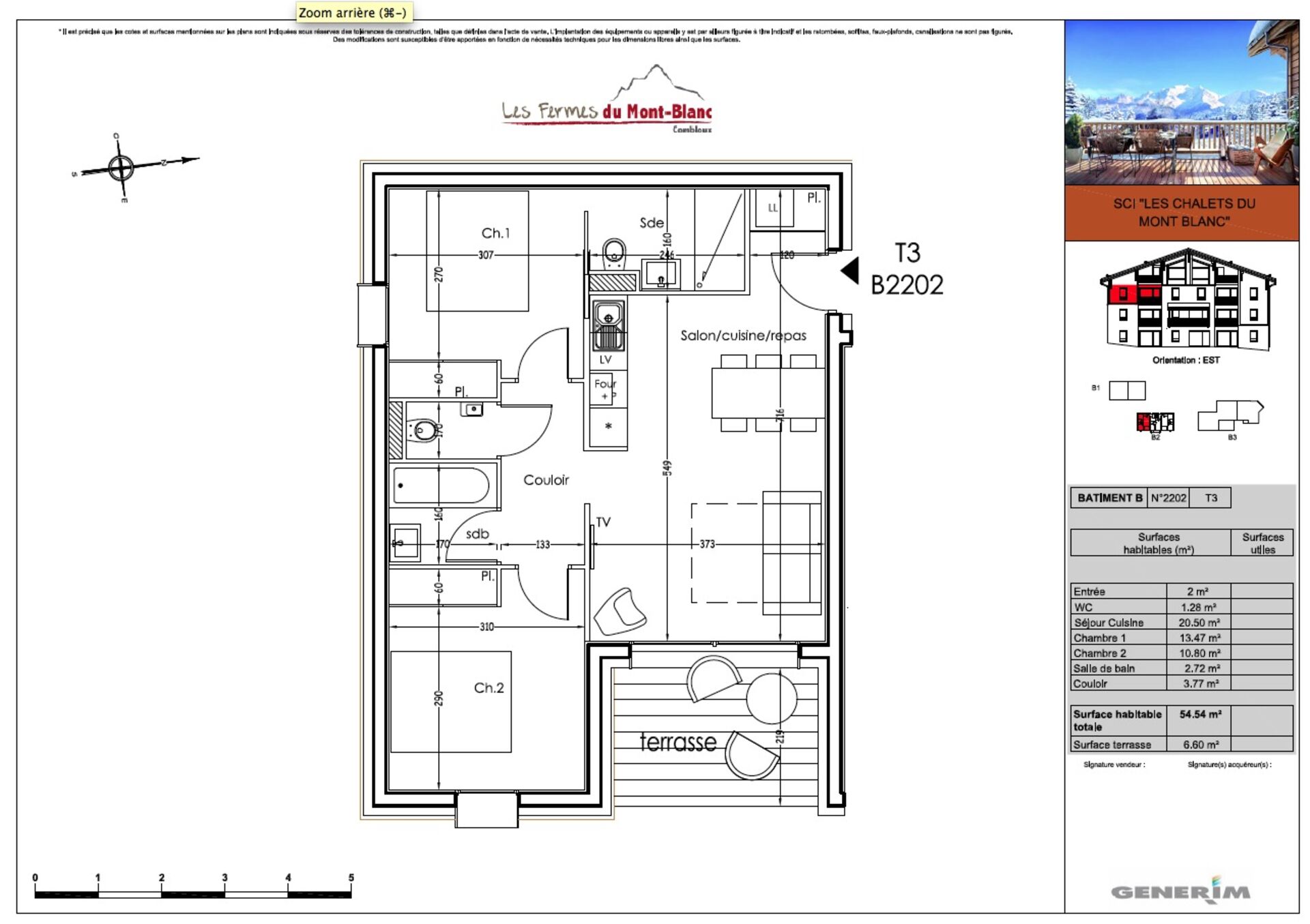
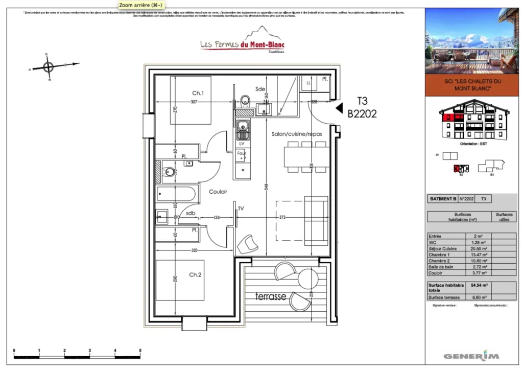
Cet appartement de type 3 beneficie d'une superficie de 54,54m2 et d'un balcon de 6,60m2. Il profite d'une vue Est.

Au coeur de la station de Combloux, la résidence Les Fermes du Mont Blanc offre une vue exceptionnelle sur le Mont Blanc.

Une place de parking est proposé avec cet appartement.

 

Partager :
Nous écrire
Les champs indiqués par un astérisque (*) sont obligatoires