1. Accueil
  2. Achat
  3. Chalets & appartements à la montagne
  4. Appartement 4 cabine La Plagne Résidence de tourisme ****
Retour
Chalets & appartements à la montagne

Appartement 4 cabine La Plagne Résidence de tourisme ****

Vendu

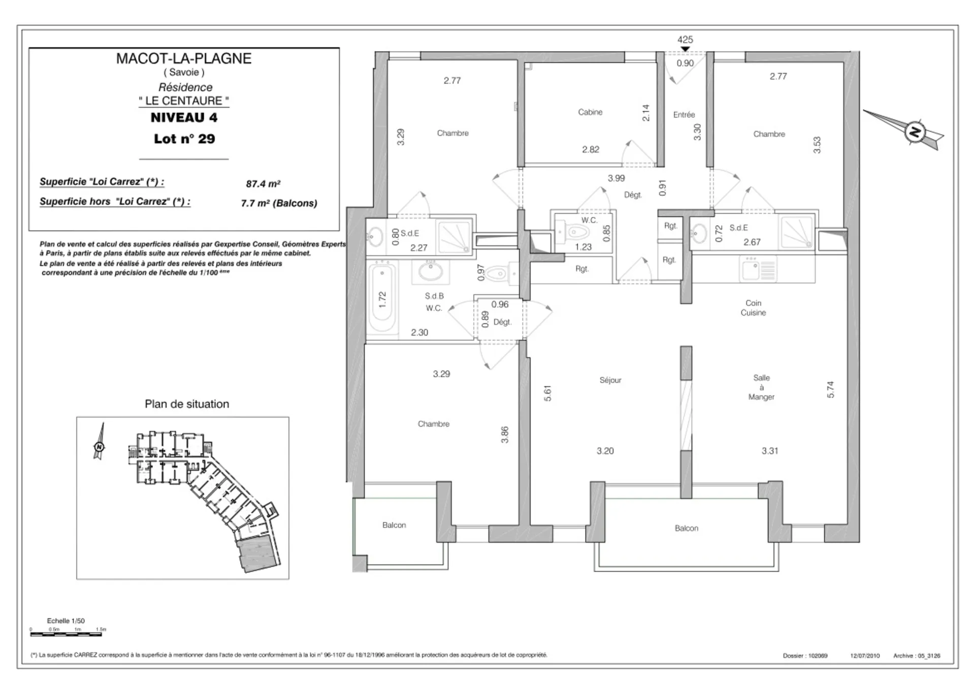
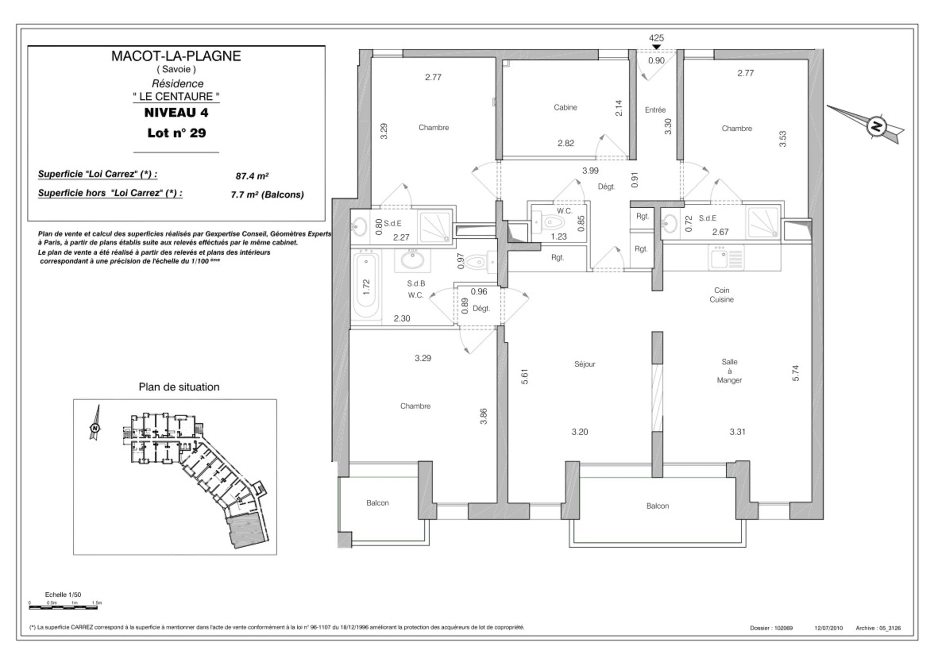
Magnifique appartement T4 cabine situé en Savoie station la Plagne d'une superficie de 87,40m2 exposé sud ouest. Cet appartement est proposé au prix TTC de 468 332€ avec 2 places de parking, cave et entièrement meublé.

Partager :
Nous écrire
Les champs indiqués par un astérisque (*) sont obligatoires