1. Accueil
  2. Biens vendus
  3. Appartement T3 duplex entièrement rénové situé à Vénissieux limite Lyon 8ème
Retour
Biens vendus

Appartement T3 duplex entièrement rénové situé à Vénissieux limite Lyon 8ème

Vendu
Appartement T3 duplex entièrement rénové situé à Vénissieux limite Lyon 8ème
Voir plus

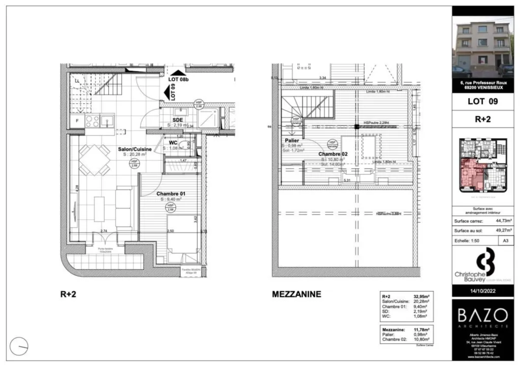
Situé dans le quartier Moulin à vent, limite Lyon 8ème, au sein d’un quartier vivant et dans une rue calme, nous vous proposons à la vente un appartement T3 duplex d’une superficie de 44,73m2 au 2ème étage avec balcon.
Pour une meilleure projection, l’aménagement intérieure de votre plateau a été pensé par notre architecte d’intérieur, tout en vous laissant une totale liberté dans le choix des matériaux. 
La vente est proposé en plateau à aménager avec la viabilisation comprenant le raccordement à l’eau, au réseau électrique et pose de cloisons à la charge du vendeur. Marché de travaux sur simple demande.

La résidence le 6 est un bel immeuble ancien entièrement réhabilité, façade, partie commune, aucuns travaux à prévoir. Livraison 1 trimestre 2023. Emplacement de 1er ordre, à proximité immédiate des transports en commun T6 arrêt Petite GUILLE, BUS 34 GRANGE BLANCHE, commerces. Pour les investisseurs, location non soumise à l’encadrement des loyers.

Partager :
Nous écrire
Les champs indiqués par un astérisque (*) sont obligatoires